Trong cuộc sống bộn bề, làm thế nào để gìn giữ văn hóa truyền thống của ngôi nhà gỗ mà vẫn đảm bảo tính tiện ích, công năng sử dụng phù hợp lối sống ngày nay.
Gỗ Giang chia sẻ cùng quý vị mẫu thiết kế khuôn viên ngôi nhà gỗ 5 gian kết hợp cùng không gian sinh hoạt, cảnh quan sân vườn. Cùng khám phá chi tiết của các hạng mục trong khuôn viên ngôi nhà gỗ 5 gian.
FULL - BẢN VẼ THIẾT KẾ KHUÔN VIÊN NHÀ 5 GỖ GIAN : TẢI TẠI ĐÂY
- Khuôn viên công trình với diện tích đất khoảng 1300m2. Với các hạng mục bao gồm :
- Nhà gỗ 5 Gian : 150 m2
- Nhà ở 3 Gian ( Phụ ) : 55 m2
- Nhà Bếp 3 Gian : 50 m2
- Chòi Lục Giác : 12,5 m2
- Hồ Cá , Non Bộ, Vườn Cây Cảnh : 200 m2
- Cầu đá, Cảnh quan sân vườn.
2. Chi tiết thiết kế ngôi nhà gỗ 5 gian:
Thông số kỹ thuật của công trình :
- Chiều dài phủ bì : 15,53 m – Chiều rộng nhà 6,12 m.
- Ngôi nhà được chia gian kích thước tình từ tim tim cột : Gian giữa 3,0 m , Gian bên 2,83 m , 2 buồng gói 3,01m , Hiên : 1,48 m.
- Ngôi nhà có 24 cột và 6 cột áp tường.
- Kích thước cột cái có đường kính 33cm, cột con đường kính 28 cm, cột hiên và cột hậu 26 cm.
- Chất liệu : Gỗ Lim Châu Phi.
- Hoàn thiện : Sơn Nano nhập khẩu Châu Âu.
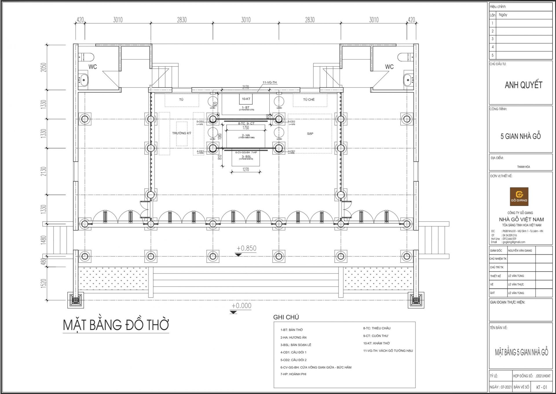
Kiến trúc nội thất gian thờ :
Đây là không gian dành nhiều tâm huyết, thể hiện lòng thành kính và tôn trọng của con cháu đối với tổ tiên. Kiến trúc này, tạo ra không gian thờ có chiều sâu và cảm giác trang nghiêm.
- Không gian nội thất bên trong, nổi bật của ngôi nhà gỗ 5 gian truyền thống là gian giữa với kiến trúc thờ hai lớp.
- Lớp ngoài: hương án, bàn soạn lễ, cửa võng, hoành phi, câu đối, bát hương, ngũ sự, đỉnh đồng.
- Lớp trong: giường hành, thiều châu, cuốn thư, câu đối, khám thờ, lục bình.
3. Nhà Bếp & Công trình phụ trợ :
- Thiết kế liền kề nhà gỗ chính, nhà Bếp được xây dựng phù hợp cho công năng sử dụng, tiện ích cho cuộc sống sinh hoạt thường ngày và những dịp Lễ, Tết quan trọng.
- Đồng bộ kiến trúc với ngôn ngữ truyền thống của cả khuôn viên.Nhà theo lối 3 gian với không gian mở, cửa sổ lớn để tận dụng ánh sáng tự nhiên và tầm nhìn ra khu vườn xung quanh.
- Nội thất gỗ và các thiết bị hiện đại được sắp xếp hợp lý, mang lại không gian ấm cúng và tiện nghi cho việc nấu nướng, sinh hoạt.
Các Hạng Mục Phụ Hoàn Thiện Giai Đoạn II :
4. Nhà ở 3 Gian :
- Thiết kế bên phải nhà chính cùng trục với Bếp được liên kết bởi hệ hành lang có mái che, sự tính toán tiện dụng hoạt động sinh hoạt hàng ngày của gia đình.
- Kiến trúc theo lối 3 gian truyền thống , 1 phòng ngủ, không gian phòng khách kết hợp cùng nội thất : sập gụ tủ chè, trường kỷ.
- Trang trí bên trong nhà ở 3 gian được lựa chọn với sự chú trọng đến sự ấm cúng và tạo cảm giác thư thái cho các thành viên trong gia đình.
5. Tổng Thể Cảnh Quan Sân vườn :
- Điểm nhấn của ngôi nhà gỗ 5 gian, với khuôn viên sân vườn xanh mát cùng cảnh quan mang đậm nét đẹp làng quê. Trước cau sau chuối, vườn rau, ao cá, cây cảnh.
- Đây cũng là nơi các thành viên có thể thư thái, và tận hưởng không gian yên bình hòa mình với thiên nhiên.
6. Chòi Lục Giác- Cổ diêm 2 tầng mái :
- Một điểm nhấn đặc biệt trong khuôn viên là chòi lục giác, nơi gia đình có thể tận hưởng không gian rất riêng gần gũi thiên nhiên, thư thái thưởng trà cũng như sum họp cùng gia đình.
7. Cổng & Cầu Đá, Sân Đệm :
- Hạng mục cổng được thiết kế với kiến trúc 4 mái : Hệ mái gỗ và 2 cánh cửa gỗ, kết hợp với đắp vẽ, nề ngõa truyền thống.
- Bước qua không gian đệm vào trong khuôn viên là một chiếc cầu đá, tạo ra một đường dẫn nối giữa các khu vực trong khuôn viên ngôi nhà gỗ.
- Cầu đá được thiết kế với kiến trúc hoa văn truyền thống, tạo điểm nhấn độc đáo và mang đến sự hài hòa tự nhiên.
- Hồ cá được thiết kế bên vườn cây cảnh , kết hợp cùng nghệ thuật đá non bộ.Điều dó tạo nên một không gian yên bình, thư thái.
Công trình vẫn đang trong quá trình hoàn thiện các hạng mục phụ. Chúng tôi hy vọng qua mẫu nhà gỗ 5 gian này, góp một phần khơi gợi được sự lan tỏa và gìn giữ, kế thừa văn hóa nét đẹp truyền thống của dân tộc Việt Nam.
Gỗ Giang là một trong những công ty thiết kế và thi công nhà gỗ, nhà thờ họ uy tín và chuyên nghiệp hàng đầu Việt Nam nói chung và Chàng Sơn nói riêng.Vui lòng liên hệ tới Hotline 0933.666.929 (Phạm Sơn) hoặc Nghệ Nhân Quốc Gia -Ths.KTS - Nguyễn Giang – 0912.666.929, để nhận được sự tư vấn nhanh chóng và chu đáo cùng đội ngũ kiến trúc sư hàng đầu, cùng bề dày kinh nghiệm lâu năm trong làng gỗ về thiết kế và thi công nhà gỗ cũng như những mẫu nhà đẹp khác.
- Văn Phòng: Số 40 Hàm Nghi, Mỹ Đình, Nam Từ Liêm , Hà Nội.
- Địa Chỉ Xưởng 01 : số 03, KCN xã Chàng Sơn,Thạch Thất,Hà Nội.
- Địa Chỉ Xưởng 02 & 03 : số 07 & 57 Đồng Cam,KCN Kim Quan,Thạch Thất, Hà Nội.
